Продается коммерческая недвижимость, Россия, Москва, Ленинградский проспект, 23
55.0 м² этаж 1 этажность 3 Динамо · 13 мин пешком
Россия, Москва, Ленинградский проспект, 23
Описание
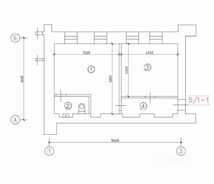
Продам помещение свободного назначения, общей площадью 55 кв м, расположенное по адресу: Москва, Ленинградский просп., 23 на первом этаже 5-и этажного здания с отдельным входом со двора. В пешей доступности от метро Белорусская и Динамо,Своя мокрая точка с туалетом, 20 кВт электричество, дополнительная презентация по запросу.
35 425 000 ₽
Параметры объекта
Подробные характеристики по данным карточки
Общая площадь
55 м2
Тип здания
Нежилое
Тип здания
Административное
Высота потолков
3 м.
Кондиционирование
Местное
Тип договора
Продажа объекта
Электрическая мощность
20 кВТ
Пожаротушение
Сигнализация
Этаж
1
Этажей
3
Отопление
Центральное
Вход
Отдельный со двора
Метро
Динамо
Время до метро
13 мин.
Путь до метро
Пешком
Цена
35425000 руб.
Форма налогообложения
УСН
Тип сделки
Продажа
Возможное назначение
Бизнес, Торговля, Склад, Производство, Свободное назначение, 12, 15, 17, 40, 41, 43, 69, 70, 76, 77, 78, 82, 84, 85, 104, 111, 121, 139
Тип недвижимости
Коммерческая
Вентиляция
Приточная
Расположение
Россия, Москва, Ленинградский проспект, 23

















































